mission concours
type construction neuve
maître d’ouvrage Mairie de Miramas
maître d’oeuvre CoCo architecture mandataire, Maya , AIS , Orféa Atelier Tombolo
date 2024
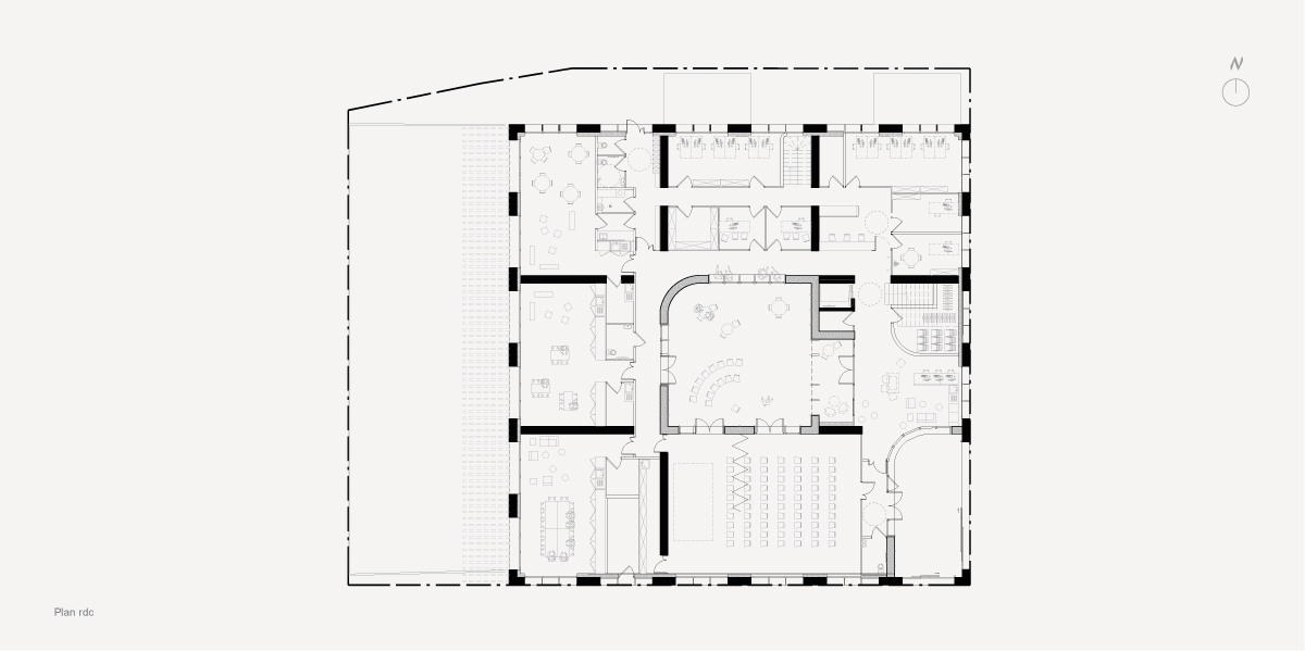
surface 824 m2
prix 2,4M€HT
lieu Miramas (13)
programme centre social et culturel, maison du droit et espace associatif.
Au cœur du périmètre de renouvellement urbain du quartier Maille 1 de Miramas, un nouveau projet vise à accueillir le centre socio-culturel Jean Giono, une salle associative et la maison du Droit. Plus qu’un simple déménagement, ce projet cherche à créer une synergie entre ces acteurs sociaux et à établir un bâtiment emblématique pour le quartier. Avec des ambitions environnementales élevées, le bâtiment vise l’obtention du niveau « or » de la démarche BDM, symbolisant l’engagement de la collectivité.
Le bâtiment s’inscrit dans un projet urbain global, interagissant avec des façades expressives et un volume accueillant, tout en valorisant des éléments issus des démolitions environnantes.
Le projet s’adapte à un environnement hétérogène : de hauts immeubles à l’Est, des pavillons à l’Ouest, une future place et des équipements publics au Nord. Situé à l’intersection de deux éléments paysagers majeurs, la place-parc et la rue-jardin, l’équipement se distingue par son architecture simple et intemporelle. Un parvis couvert à l’angle des deux axes principaux forme une transition accueillante entre l’espace public et le bâtiment.
L’utilisation de la pierre locale répond à des enjeux techniques tels que la réduction de l’impact carbone et la durabilité tout en offrant une image valorisante pour le quartier.






