mission concours
type construction neuve
maître d’ouvrage Mairie de Puilacher
maître d’oeuvre CoCo architecture mandataire , IB2M,
Vincent Prat, Acoustex
date 2024
surface 855m2
prix 2,2M€HT
lieu Puilacher (34)
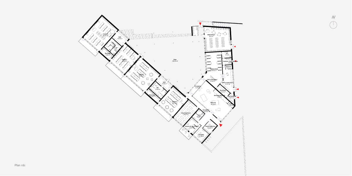
programme Salles de classes, restauration, bibliothèque, salle de motricité mutualisé avec l’usage communale, cour, jardins , parvis
Le groupe scolaire a été soigneusement conçu selon des principes de conception bioclimatique simples et respectueux de l’environnement bâti. Le projet se distingue par sa sobriété et son respect envers l’architecture locale existante tout en offrant des espaces de qualités et fonctionnels qui répondent aux besoins de flexibilité et de mutualisation de la commune.
Les choix de conception ont été guidés par une approche holistique, prenant en compte les conditions climatiques locales et les ressources naturelles disponibles. Ainsi, les bâtiments ont été orientés de manière à tirer parti de l’ensoleillement optimal, favorisant une utilisation efficace de la lumière naturelle et une réduction de la dépendance aux sources d’éclairage artificielles.
L’aménagement paysager environnant a également été pensé dans le cadre de cette approche durable, favorisant la biodiversité locale et contribuant à la régulation thermique naturelle de l’environnement. La sélection réfléchie des matériaux et de la végétation assure durabilité et résilience. Le tout offre un environnement enrichissant pour les enfants et la communauté.
Le projet tire parti de la topographie du terrain pour proposer des espaces extérieurs variés et qualitatifs ouvert sur le paysage. La salle de motricité est le pivot de l’école, par sa position mais aussi par ses fonctions variable : salle de motricité, hall d’entrée, deuxième salle de restauration, deuxième salle de sieste ou de garderie, salle des fêtes pour le village…La cour vient protéger visuellement les enfants notamment grâce à la végétation et au préau qui prend la forme d’une coursive.






