mission concours
type construction neuve
maître d’ouvrage Communauté de communes Entre Bièvre et Rhône
maître d’oeuvre CoCo architecture mandataire, , BOST ingénierie, Enertech, LO VRD, Tombolo, Venathec, CCG
date 2025
surface 2408m² SU et 6 311m² extérieurs
prix 9,1M€ HT
lieu Agnin (38)
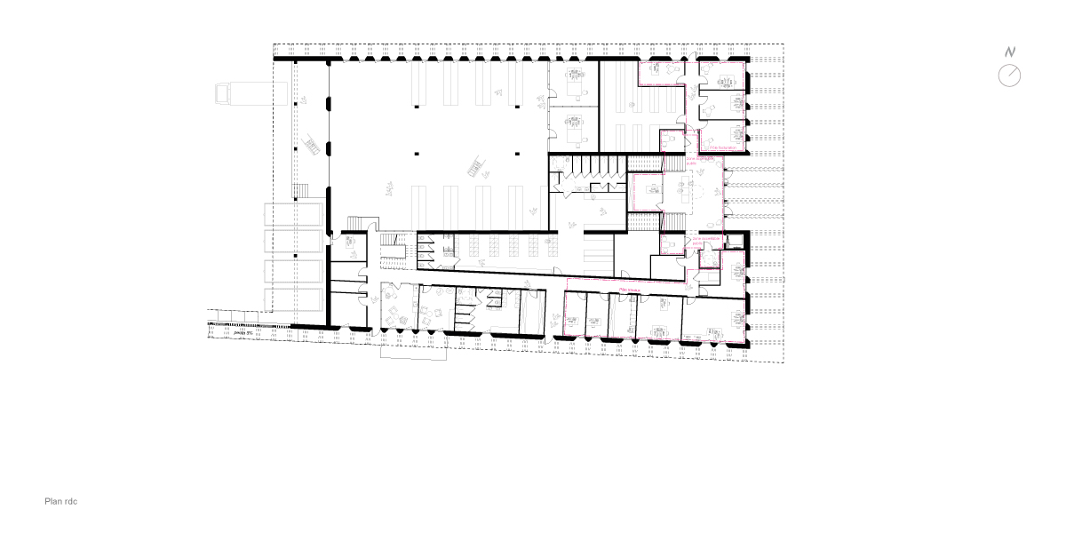
programme bureaux administratifs, salle de conférence pour le service des Eaux incluant cour logistique, ateliers et garages
matériaux pierres de taille en rdc, structure bois en étage (structure et bardage), charpente bois et couverture bac acier, isolation paille
Le projet s’implante sur une parcelle tout en longueur sous une toiture généreuse qui abrite bureaux, ateliers techniques et garages. La toiture en pente douce suit la topographie naturelle et hiérarchise les fonctions : bureaux, garages pour engins de chantier et enfin abri pour les utilitaires.
En dialogue direct avec le terrain naturel, un vaste jardin de pluie s’étire sur toute la longueur de la parcelle. Il capte et infiltre les eaux de ruissellement issues des surfaces imperméabilisées, tout en constituant un véritable espace paysager. Ce dispositif végétalisé crée une lisière protectrice vis-à-vis de la zone artisanale et favorise l’accueil de la biodiversité locale.
La cour de service regroupe les fonctions logistiques : zones de stockage, quai de chargement, bennes et station de lavage. Les flux techniques sont dissociés grâce à un accès dédié.
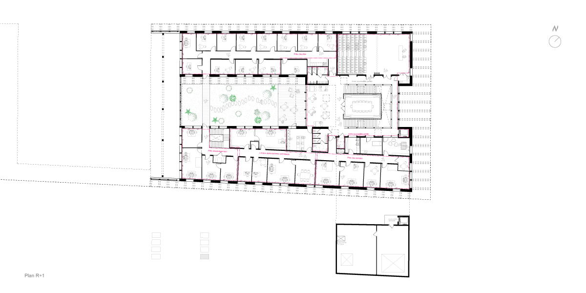
À l’étage, un patio abrité offre aux agents un espace de pause qualitatif, tandis qu’au rez-de-chaussée, le hall en double hauteur affirme la dimension publique de l’équipement.
L’écriture architecturale se veut cohérente et lisible : un socle en pierre massive ancre le bâtiment, tandis que l’étage en ossature bois est rythmé par une trame régulière de façades. Une attention particulière est portée au confort des usagers, notamment à la qualité des vues et à la maîtrise de la lumière naturelle. Les ouvertures sont dimensionnées pour limiter les apports excessifs, complétées par des brise-soleil réglables et des protections intérieures adaptées aux saisons.










