mission mission complète, base loi MOP
type construction neuve
maître d’ouvrage Périgord Habitat
maître d’oeuvre CoCo architecture mandataire, Odetec, Sepibat
date 2021-2025
surface 2464 m²
prix 3,4M€HT
lieu Périgueux (24)
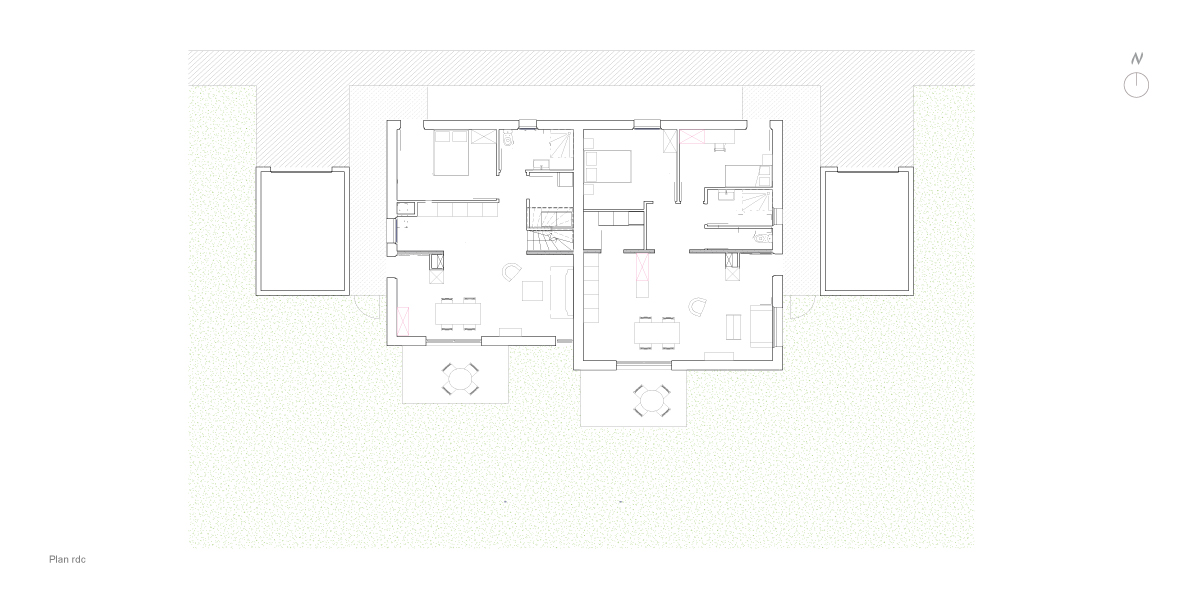
programme logements individuels T2, T3 et T4 (tous PMR) et logement collectif allant du T2 (PMR) au T3
label « engagé pour la qualité du logement de demain »
matériaux murs extérieurs en briques de terre crue compressée porteuses
Le projet propose un ensemble de logement qualitatif à la densité maîtrisée, en implantant un hameau mixte et vivant, répondant aux attentes des périgourdins qui souhaitent vivre en maison individuelle. Chaque logement est traversant, bien éclairé et ventilé naturellement, avec des vues sur le paysage, et un petit bout de nature à soi.
La proposition s’organise autour d’un cœur d’îlot végétalisé, paysagé et exclusivement réservé aux piétons et mobilités douces, un parc commun, central dans le projet. La diagonale de l’Impasse Louis Braille perd son statut de rue. Dans cette logique d’îlot, les voitures sont laissées sur les extérieurs du site. Des fronts bâtis se structurent ensuite en périphérie de l’îlot le long des rues, avec l’idée d’une gradation de la densité allant du petit collectif (en haut du site, en continuité avec l’immeuble existant) vers la maison individuelle (en bas du site, en continuité avec le tissu urbain de maisons). L’implantation des bâtis s’insère ainsi naturellement dans le site, et suit la topographie, ce qui permet de dégager des vues et optimiser les apports solaires. Les logements collectifs s’implantent en partie haute du site, selon un axe Est-Ouest pour bénéficier d’apports solaires toute la journée, sans être gênés par l’ombre et la barre existante au sud, et pour éviter tout vis-à-vis avec celle-ci. Des venelles piétonnes permettent de desservir tous les logements et de créer des porosités visuelles, des continuités végétales, des accès piétons et vélos vers le cœur d’îlot vert. L’espace central prend la forme d’un parc commun, avec des jardins partagés, un terrain de pétanque, des espaces appropriables par les habitants du quartier.





