mission complète, marché privé
type réhabilitation
maître d’ouvrage Mr Barbet et Mme Pichon
maître d’œuvre CoCo architecture
date 2018
surface 165m2
prix 200 k€
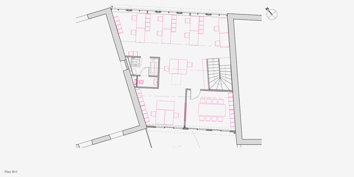
lieu Crest (26)programme Réhabilitation d’une maison de rue en ruine pour installer des bureaux (85m2), un cabinet médical (60m2) et des espaces communs (20m2)
Le projet consiste en la restructuration d’une maison de ville en secteur historique au pied de la tour de Crest. Le bâtiment donne sur la rue au Nord et sur un jardin partagé au Sud. Le programme consiste en la création de 85m² de bureaux pour une agence d’architecture à l’étage et 60 m² de cabinet de sage-femme en RDC, ainsi que 20 m² de locaux communs (circulation et cuisine partagée).
La structure maçonnée poteau poutre du RDC a été conservée en l’état. Les parties de remplissage entre poteaux ont été démolies pour laisser de grandes baies vitrées sur la rue afin d’éclairer le cabinet médical, mais aussi pour pouvoir transformer facilement le local en espace commercial.
A l’étage, le bâtiment a la particularité de ne pas avoir de structure porteuse propre, les poutres de toiture allant d’un refend mitoyen à l’autre. Les façades sont des colombages non porteurs. De ce constat, le parti pris a été de démolir ces éléments, pour créer des façades très ouvertes, apportant au Nord une vrai respiration sur la rue, et donnant sur le jardin au Sud de l’autre. Un mur rideau vitré, avec de fins montants verticaux, a été mis en place sur rue. La trame est étroite pour rappeler les verrières des ateliers présents en centre historique. De petits ouvrants de ventilation viennent rythmer la façade et permettent de ventiler amplement le bâtiment l’été. Les garde-corps sont disposés à l’intérieur afin de de ne pas dénaturer les façades. Côté Sud, les ouvrants verriers sont des coulissants qui reprennent le même principe et ouvrent en grand l’espace sur le jardin. Ce changement de dispositif permet de transformer le local en logement dans le futur.
Après un désamiantage de la toiture, celle-ci a été isolée par-dessus la charpente pour laisser tout le bois apparent. Les poutres, chevrons existants, ainsi que la nouvelle volige, sont tous peints en blanc, ce qui unifie l’ensemble.
La salle de réunion et l’espace repro/sanitaire sont positionnés dans des boîtes blanches qui ne montent pas jusqu’au toit. La charpente est alors entièrement visible, dégageant un beau volume. Les murs mitoyens maçonnés existants sont enduits à la chaux, ce qui épouse les irrégularités de la pierre.
Enfin, une terrasse commune est installée dans le jardin, accessible depuis la cuisine, afin de partager des repas entre les usagers des deux étages. Un grand rideau de camouflage amovible protège les larges ouvertures Sud du soleil en été.
La teinte des enduits, des éléments menuisiers fins et bien travaillés, une couleur de fenêtre gris légèrement teinté, permettent à cette architecture contemporaine de s’intégrer dans le centre historique de Crest.












